is a small practice that operates between architecture, research and academia. driven by an interest in existing structures and their potential for transformation, the office explores different design approaches to heritage and the built environment, questioning what preservation means today and how reuse can transcend purely ecological motivations and generate new architectural discourses. the office was founded in 2022 by laura solsona and eduard fernàndez.

carrer dels capellans, 2, 3-1
08002 barcelona map

+34618094105
+34618393293
instagram
P 2203
project
type
use
client
location 
size
budget
year
status
el molinot

heritage, rehabilitation
residential
private
riudaura, girona
160m2
tbc
2022
ongoing

architecture is a process. a very long one in fact. this process is never straightforward and continuously moves back and forth, involving a rich yet complex net of stakeholders: from clients, investors, lawyers, to public workers, engineers, architects, and end-users. but not only, it also involves changes in the program, misplaced structures, materials on-site, and construction codes that do not accommodate the existing conditions, requiring constant adaptation. as a practice engaged in architectural design, we use to oversee this process to anticipate construction, although it eventually remains somehow uncertain. It is precisely through this condition of uncertainty where contemporary architecture has the opportunity to explore new formal languages and question pre-established notions of good design.





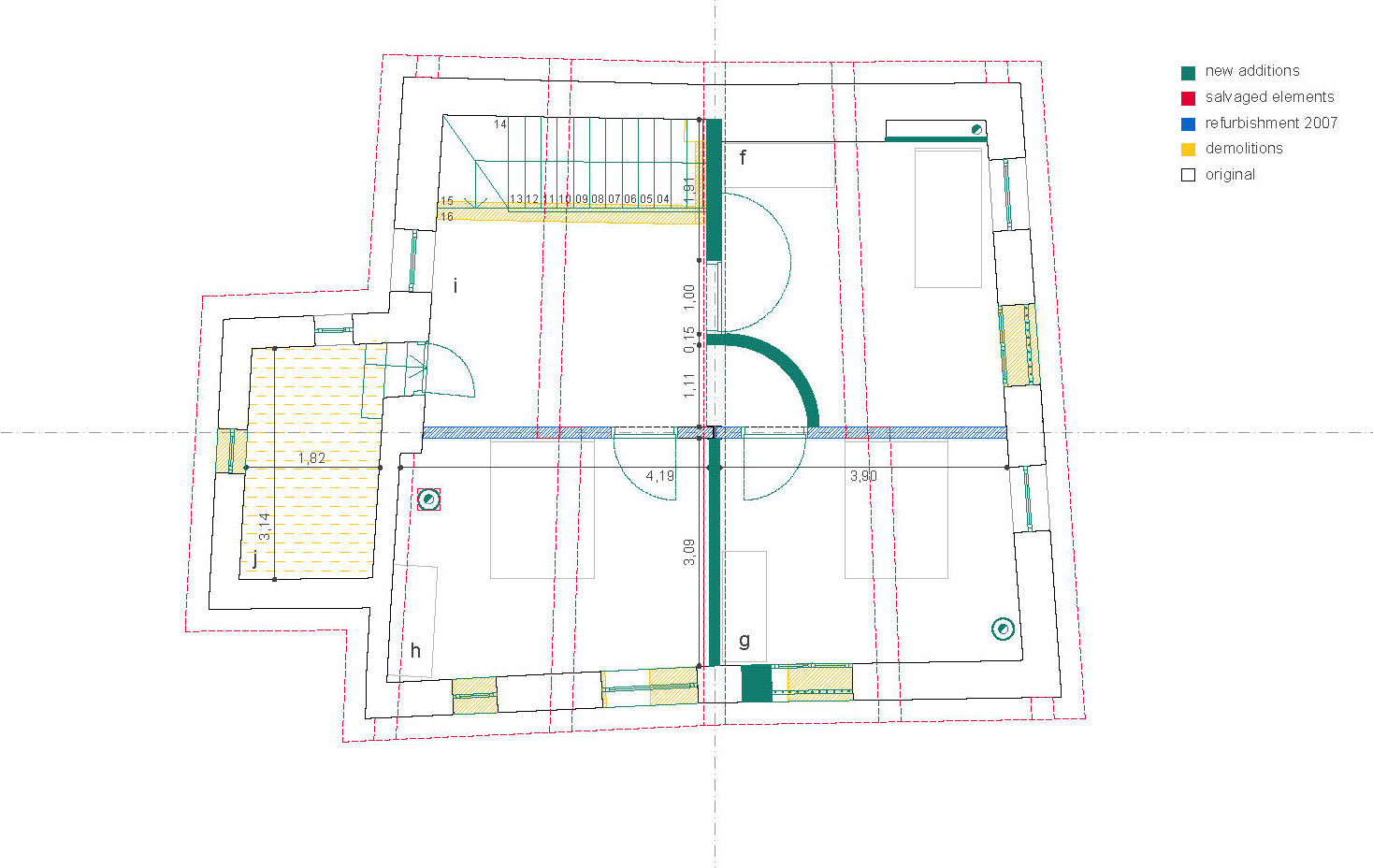
In 2022, we were commissioned with refurbishing an old watermill from 14th century in riudaura. upon project acceptance, we found a house with its interior fully demolished and partially reconstructed. due to the global financial crisis, the property had remained in disrepair for years. the house had been reduced to an empty shell, only four walls and a roof remain from its original state. the interior stone walls had disappeared, replaced instead by a new steel-frame structure and brick wall to support the newly renovated roof. the juxtaposition of these seemingly opposing construction systems is unexpected from a rational perspective. however, they blend seamlessly with the other exposed materials, accidentally shaping the character of the space.






but what truly constitutes the ‘existing’ anymore? is it relevant to differentiate between the original and the new if the house has been drastically modified? rather than to establish a criteria for determining what must stay and what must go, the understanding of the house ‘as found’ might become a new language worth to explore, a new strategy following a process already started. we understand the project as a collection of diverse construction systems that are intricately articulated to each other. like surgical procedures that dissect the existing structures and carefully complement and extend them. this results in a sense of coherence and differentiation, making it nearly impossible to distinguish between the several interventions and the original construction.