is a small practice that operates between architecture, research and academia. driven by an interest in existing structures and their potential for transformation, the office explores different design approaches to heritage and the built environment, questioning what preservation means today and how reuse can transcend purely ecological motivations and generate new architectural discourses. the office was founded in 2022 by laura solsona and eduard fernàndez.



carrer dels capellans, 2, 3-1
08002 barcelona map

+34618094105
+34618393293
instagram
C 2402
competition

type
use
client
location 
size
budget
year
collaborators
quart

adaptive reuse, rehabilitation, extension
cultural
city council
quart, girona
1.884 m2
1.853.472 €
2024
agència material

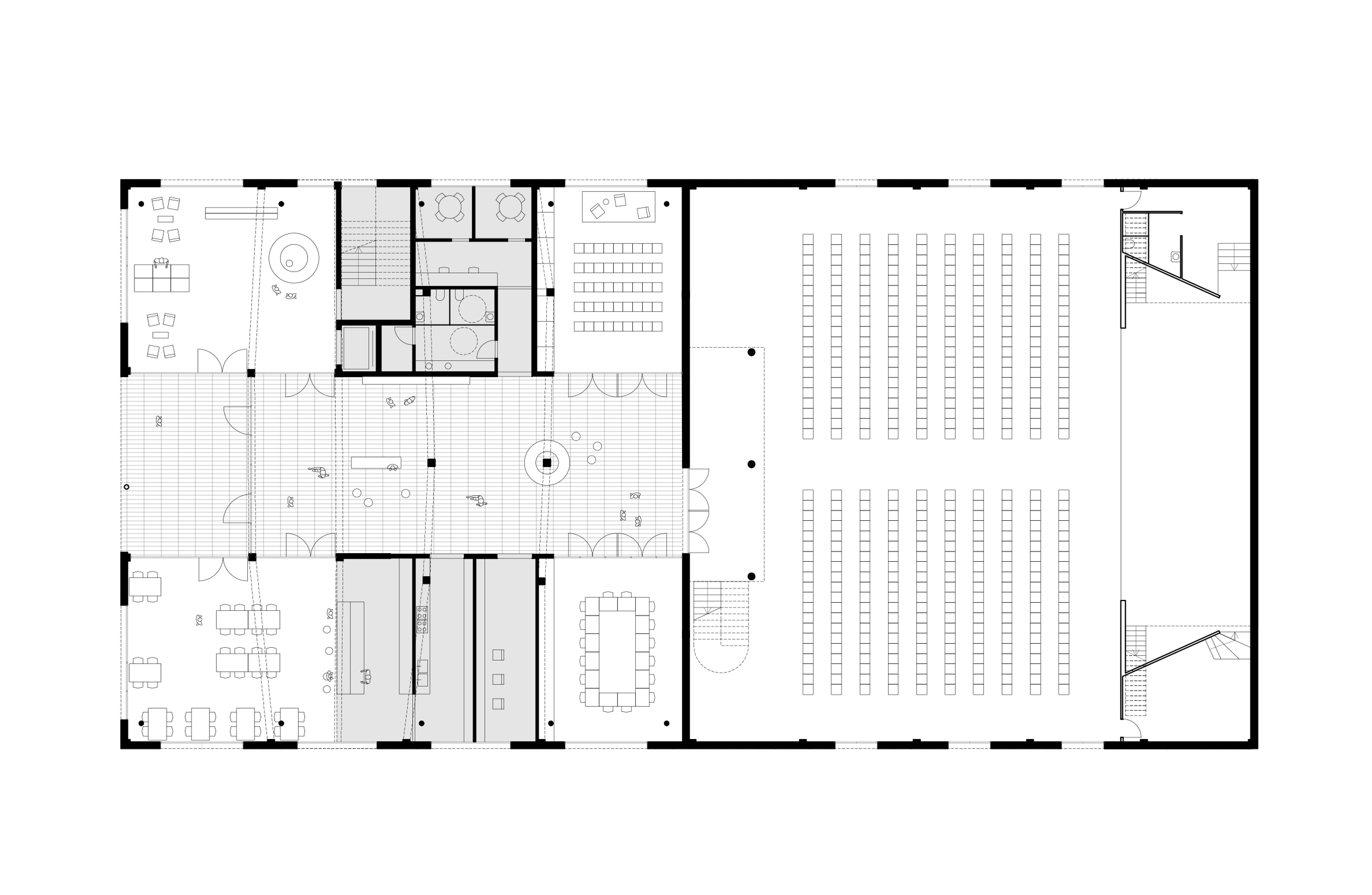
the proposal begins with the adaptive reuse of a generic 1980s industrial building with civic functions. the brief called for expanding the surface area of the public library, which required extending the existing volume. the strategy focuses on consolidating the front façade by adding a new floor aligned with the height of the adjacent theatre, completing the volume. since the existing structure couldn't support additional loads, the extension is designed as a lightweight, prefabricated structure that grows over the original building, detached from its foundations and supported independently. this approach avoids costly reinforcement works while extending the building’s useful life.






the new addition houses a civic programme: library, meeting rooms, and a shaded urban gallery. a compact core organises circulation, while the original envelope is opened to reconnect with the surrounding public space. by working with what’s already there, the project shifts the focus from replacement to reactivation, prioritising reuse, low-impact construction, and long-term adaptability.